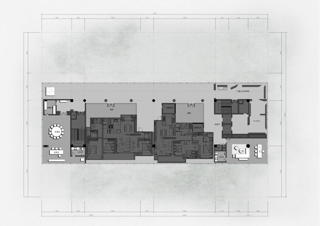
佛山华润顺德悦府示范区
在顺德华润悦府的设计中,将传统建筑中的思想精华与当代的空间设计相结合,以现代的空间表达方式呈现,希望能够唤起一些岭南人的情感共鸣。
服务范围:地产开发-住宅
销售参考价: 价格待定华南地区售楼空间
入围项目
- 项目名称:佛山华润顺德悦府示范区
- 项目地点:广东省 佛山市 顺德区顺德华润置地广场
- 开发商:华润置地
- 项目类型:住宅
- 形态:示范区
- 市场定位:改善系
- 建成时间:2021年
- 风格:现代
- 占地面积:163000㎡
- 建筑面积: 700000㎡
- 容积率:3.1
- 发布日期:2022-09-16
- 最近更新:2022-12-02 11:57
在顺德华润悦府的设计中,将传统建筑中的思想精华与当代的空间设计相结合,以现代的空间表达方式呈现,希望能够唤起一些岭南人的情感共鸣。

















































金盘网APP
金盘网公众号
金盘网小程序



