深圳熙元山院别墅
女主人有多年的国外旅居生活经历,生活追求淡定从容 设计的初衷就是打造出理想居所的气质 用素雅的基调,勾勒出对生活的态度
- 项目名称:深圳熙元山院别墅
- 项目地点:广东省 深圳市熙元山院别墅
- 设计参考价:¥1000/㎡
- 项目类型:私宅
- 建成时间:2021年
- 风格:现代
- 设计面积:500㎡
- 发布日期:2024-04-29
- 最近更新:2024-04-29 17:09
本案位于深圳某别墅住宅区
小区闹中取静、绿树成荫
置身其中恍如远离所有的都市喧嚣
宁静舒适的感受令人神驰...
该别墅上下共四层,南北通透、采光极好
业主是一对非常随和的高知夫妇
女主人优雅从容、品位高雅
男主人温文尔雅、谈笑风生

女主人有多年的国外旅居生活经历,生活追求淡定从容
设计的初衷就是打造出理想居所的气质
用素雅的基调,勾勒出对生活的态度


一楼的餐厨空间是家庭的重要区域
中西厨空间光线充足,功能交错、动线合理
规划的西厨区域不仅满足日常使用需求
更是家人、闺蜜相聚的社交舞台



餐厅270度大开面的落地窗将院外的景观一览无余
阳光透过白色的实木透气窗,均匀洒进屋内
斑驳的光影成为最好点缀
生活就是一半烟火,一半诗意......



二楼的客厅拥有6.8米的挑空及一整面的落地窗
窗外的景观与客厅毫无遮挡的融为一体
空间无限向外延伸,已不需要多余的设计
所以在墙面的处理上
做到色彩统一有序、与自然融合
给人舒适、放松的心理感受就好
下沉式的客厅破解了整层空间长条形的原始结构
使空间层次分明,也更容易产生亲近感与安全感。


茶室、钢琴区等休闲辅助空间展开对精神生活的追求
闲情逸致致与现代艺术结合
热爱所有的热爱......
整体空间呈现白色派轻法式腔调
是优雅的成色,也是生活的主场




卧室整体空间采用月白和霜色的搭配
营造沉稳安静的气质
用柔软温和的软装营造舒适爆棚的氛围
散发家的温馨
在这里可以治愈一天的忙碌......


主卫整体白色基调的墙地拉伸了空间的视觉效果
白色透气窗保证隐私的同时也不影响采光
透过百叶流注进室内的光影,与长虹玻璃的线条互相呼应
充满着韵律,赋予空间自然的动感
双台盆和干湿四分离的设计,最大程度保证使用功能互不干扰

次卧延续整体风格,色彩轻柔温馨
吊顶空间无主灯的设计
让卧室在视觉上显得更宽敞、光线更均匀
充分体现了简洁时尚的新生活理念


▲
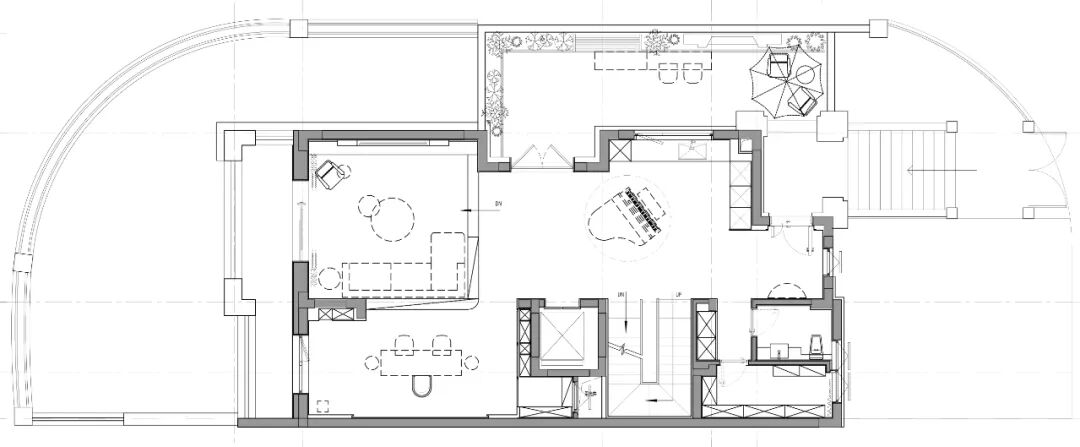
1F PLAN

▲
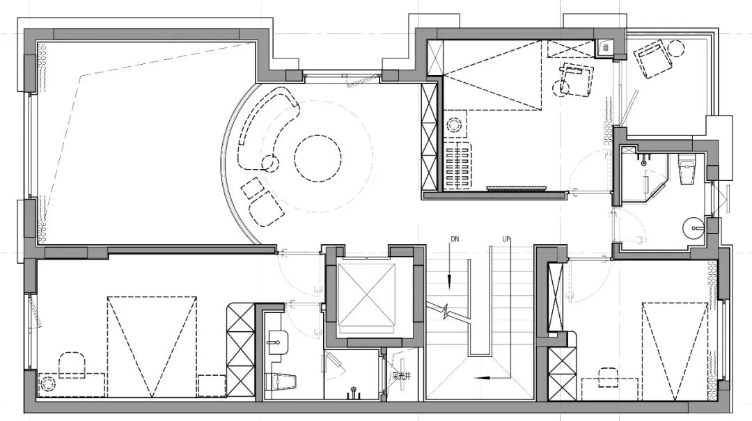
2F PLAN

▲
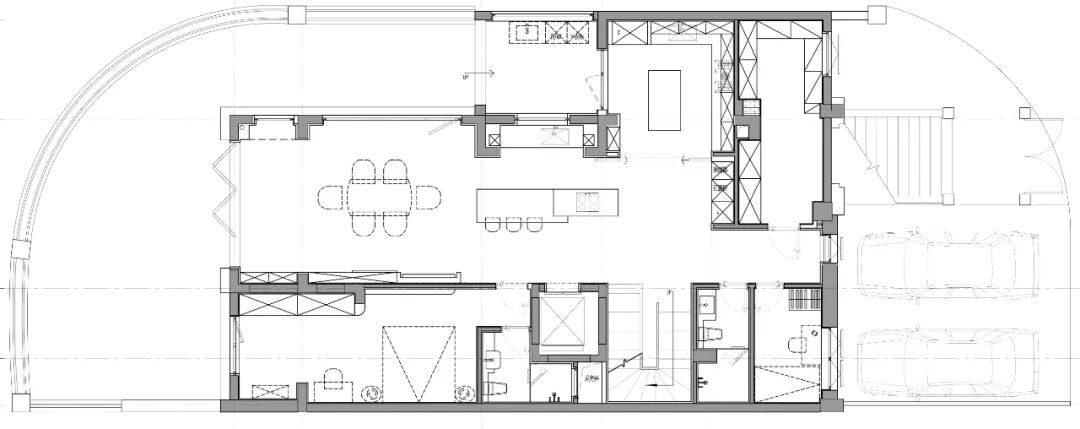
3F PLAN

▲
4F PLAN
项目名称 | 熙元山院别墅
项目地址 | 深圳市
室内设计 | 深圳市麓上环境艺术设计有限公司
设计主持 | 陈莹
设计团队 | 梁广培、李佳威、黄涛
设计时间 | 2020.12
竣工时间 | 2021.12
橱柜供应 | VIFA
门窗改造 | 旭格
电梯供应 | 日立
空调供应 | 大金
岩板供应 | REX
关键词 | 白金沙石材、南斯拉夫白石材、蕾丝木饰面、霜色亚光烤漆板、月白色烤漆波浪板、丝质墙布、实木透气窗...
项目面积 | 500㎡
硬装造价 | 10000/㎡
金盘网APP
金盘网公众号
金盘网小程序


