绿城·濮园项目生活美学馆
绿城·濮园项目位于杭州后花园濮院古镇核心景区之畔,与之仅一桥之隔。拥有得天独厚的历史文脉与景观资源,是不可多得的宜居、宜养、宜业之地。以“经纬”作为主题贯穿,濮院本土的织线是经纬纵横的生意,经纬交错的文化,由此推至整体的贸易,国内为经,世界为纬,国...
- 项目名称:绿城·濮园项目生活美学馆
- 项目地点:浙江省 嘉兴市 桐乡市浙江省嘉兴市桐...
- 开发商:绿城集团
- 设计参考价:¥3000/㎡
- 项目类型:其他
- 形态:示范区
- 建成时间:2020年
- 风格:中式
- 设计面积:1500㎡
- 容积率:1.1
- 发布日期:2024-11-01
- 最近更新:2024-11-01 10:10
“万象不移天地外,一尘能到水云间。”
绿城·濮园项目位于杭州后花园濮院古镇核心景区之畔,与之仅一桥之隔。拥有得天独厚的历史文脉与景观资源,是不可多得的宜居、宜养、宜业之地。
以“经纬”作为主题贯穿,濮院本土的织线是经纬纵横的生意,经纬交错的文化,由此推至整体的贸易,国内为经,世界为纬,国内外贸易是事业的广度;以点见面,人生就是长度为经,阅历为纬,经纬交织构成人生的厚度。


入口的接待台利用现代与传统交融,深沉的色彩犹如大地中苏醒的蓬勃生命力,展现出极具包容的内敛力量。空间追寻着天然去雕饰的气韵,过满则溢,成就开阔,用无声的言语,描绘东方语境下的含蓄。



由独具东方韵味的细金属线条(金色)编织缠绕而成的金属装置,契合着《经纬》主题。如一轮明月从山间升起。



茶艺体验区以清雅的茶室布局,空间进行阵列式的陈设,古朴与当代相汇,设计用东方美学的逻辑来思考当代的设计语言,以茶道这股悠久的历史东方文化作为基底,进行有意识地发扬,这种诗意般的空间,不仅使整体充满端庄的仪式感,同时也塑造了一股人文与自然的融合。使清泉煮清茶,人们用一盏茶的时光,尽诉岁月静好。






吧台水吧区以平直的线条入画。光线和石材、木色墙面的交织,每个元素的点缀都承载着闲雅逸然的书墨文气,浑厚情韵既而不断引发出诗篇般的东方遐想。





洽谈区座位对称排布,疏落有秩,清简的东方美学语言缓缓萦绕。纱帘轻柔地存在,无声中向自然借光,伴随温润的色调,缓缓沉浸这静谧而无垠广阔的空间感,让自然与灵魂展开一场细腻而自在的对话。


儿童活动区以自然生态的动物主题,将动态感的卡通形象植入到空间内,沉静传统的中式韵味中跳跃着些许趣味活力。




二楼的vip茶室以山水渲染空间,中式元素的摆件和别致的茶具透出浅浅禅意,其义自见。设计在山水的意境中,描摹出空间的端雅和润的而气质,为来访者提供一个可在繁琐的日常里沉淀内心,舒缓自身的闲余场所。人在有界之中品味无界桐乡,人内心的澄澈亦随之渐次回归。

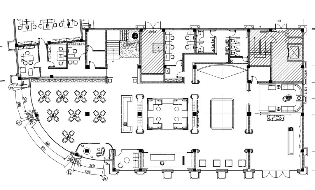
1F平面图

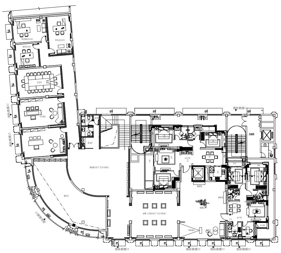
2F平面图
项目名称:绿城·濮园项目生活美学馆
开发商:绿城房产集团/桐乡市濮院旅游有限公司
项目地点:中国·浙江
项目面积:1500m²
设计机构:GLD绿檀设计
设计团队:徐帆、徐小辉、陈小芹、胡晨露
联系方式:徐先生 18758569909
公司创始人介绍:
徐帆,GLD绿檀公司创始人,为浙江大学硕士研究生,曾赴英国伦敦作交换留学,有着多国游历经验。毕业后在绿城房产集团任职多年,不但具有丰富的甲方管理经验,而且有优质的乙方设计经验,在设计领域中对国际时尚文化有着极为敏锐和独到的领悟,极具国际设计视野。

GLD绿檀设计
浙江绿檀装饰工程设计有限公司为多种类型的项目提供优质的室内设计和软装陈设服务,包括住宅项目,如样板房、售楼处、会所等;私人住宅如公寓及别墅;餐厅、酒店、服务公寓及商场等酒店、餐饮项目。我们秉承设计无界限的理念,通过文化融合、品牌整合、产品及设计师合作等协作方式得以充分体现并进一步加强。同时,通过和美国、欧洲的顶级品牌和设计师多年的紧密合作,将欧美最顶级的品牌引进中国。
ZheJianglvtandecorationengineeringdesignco.,ltd.provides quality interior design and soft furnishings services for various types of projects, including residential projects, such as model houses, sales offices, clubs, etc. Private residences such as apartments and villas; Restaurant hotel service apartments and shopping malls such as the hotel catering project, we uphold the concept of design has no boundaries, brand integration and product designers through cultural fusion and collaborative approaches to cooperate fully embody and further strengthen at the same time, through and the United States, Europe's top brands and designers work closely together for many years, will be Europe and the United States's top brand into China.
END
金盘网APP
金盘网公众号
金盘网小程序


