西双版纳桃李春风B1&B2户型
西双版纳是度假的理想居所,GLD绿檀设计以此为切入点,以天空大地为启,将一座城的生机融汇在空间中,延续着城市不灭的生命之源奔涌向着时代的序幕,谱写着城市中自然与人文吟唱的愉悦诗章。
- 项目名称:西双版纳桃李春风B1&B2户型
- 项目地点:云南省 西双版纳傣族自治州蓝城西双...
- 开发商:蓝城集团,俊都集团
- 设计参考价:¥3000/㎡
- 项目类型:住宅
- 形态:示范区
- 市场定位:改善系
- 建成时间:2021年
- 风格:现代
- 主力户型:多层(4-6层) 平层 70-90㎡ 2室 1厅 1卫
- 设计面积:60㎡
- 容积率:1.1
- 发布日期:2024-11-01
- 最近更新:2024-11-01 10:51
B1户型

西双版纳是度假的理想居所,GLD绿檀设计以此为切入点,以天空大地为启,将一座城的生机融汇在空间中,延续着城市不灭的生命之源奔涌向着时代的序幕,谱写着城市中自然与人文吟唱的愉悦诗章。
Xishuangbanna is an ideal residence for vacation. GLD sandalwood design takes this as the starting point, takes the sky and the earth as the inspiration, blends the vitality of a city into the space, continues the source of the city's immortal life, rushes towards the prelude of the times, and composes the joyful poetry of nature and humanity in the city.


休闲度假是他们放松身心的一种方式,点上喜欢的香薰,有香气盈怀。拿出最近沉迷其中的那本书,时而眉头微蹙, 时而蘧然一笑,时而凝思,时而豁朗,字里行间,横竖撇捺一一读了个遍,书中令人惊叹的句子,不自觉让人久久流连……


去掉繁琐制式,用最精炼的材料和表达手法彰显品质与品位。餐具以干净利落的亮金属与瓷器结合, 将时尚前卫感以轻松的方式放注于空间中。


在喁喁细语声中缓步穿行,仿佛就能在自然平和的空间后,捉住时光短暂搁浅的瞬息。空间的质感在卧室得到延伸,简洁的线条、细微的牵引却让各司其职的物件汇聚成一个优雅平和的整体,立于纷繁,而静于内心。
B2户型

GLD绿檀设计在本案中从自然中捕捉灵感,将都市生活和人文艺术完美重叠,感受寄情于自然的表现手法,释放出活跃有力的生命气息,为观者带来“伊甸寻梦”的丛林感官体验。
自然元素与金属点缀焕发灵动的生机,乳白色纹理的沙发隐喻细微的情感呵护,孔雀绿单椅点缀出宝格丽的奢华时尚;空间的挂画与摆件织成一个暮日森林的美妙梦境,在蕴含花鸟生机的氛围里,常绿植物葳蕤生长,热带雨林的芬芳在流动的空气里尽情释放,如闻浅吟低唱,自由的灵魂得此安放。
In this case, GLD greentan design captures inspiration from nature, perfectly overlaps urban life with humanities and art, and feels the expression method of placing affection on nature, releasing an active and powerful breath of life, bringing the viewers the jungle sensory experience of "seeking dreams in Eden".
The natural elements and metal embellishments radiate the vitality, the ivory texture sofa metaphors the subtle emotional care, and the peacock green single chair embellishes the luxury and fashion of Bulgari; The hanging paintings and ornaments of the space weave into a wonderful dream of the twilight forest. In the atmosphere of flowers and birds, evergreen plants grow luxuriantly, and the fragrance of tropical rainforest is released in the flowing air. If you listen and sing, the free soul can be placed here.


客厅空间中运用大面积的浅灰为主色,草木绿、赭色为点缀色,于无形中和了色彩的冲击,带来了优雅的气息与不经意留下的生活的品质感。
步入空间那清新的气味迎面而来,吹得万物容光,春意盎然,同时跳脱的色彩不由得让人感受到家人与朋友到来时的欢声笑语的情景画面。
The living room space uses a large area of light gray as the main color, vegetation green and ochre as the embellishment color, which virtually neutralizes the impact of color, and brings elegant breath and the quality of life inadvertently left behind.
Entering the space, the fresh smell is coming, blowing all things bright and full of spring. At the same time, the jumping color can't help but make people feel the scene of family and friends coming.

墙上的装饰作品以凹凸的质感和渐变色带给人视觉上的起伏感,它将视线和注意力由客厅引向餐厅。设计师藉由精致细腻的陈设、冷暖相融的材质、明暗有序的组合,以期呈现集品质、艺术、舒适为一体的轻奢生活方式。
The decorative works on the wall give people a sense of visual ups and downs with concave and convex texture and gradient color. It leads the line of sight and attention from the living room to the dining room. With exquisite furnishings, warm and cold materials and orderly combination of light and shade, the designer hopes to present a light and luxurious lifestyle integrating quality, art and comfort.


主卧高级灰与绿色的融合,展现着独特的优雅视感,它让人联想到绿色森林的自然清新。阳光初现,夹杂着自然的味道,将人们对于亲近自然生命力的向往具象化,也形塑了心灵的适居之所。隐约朦胧的纱窗,伴随着窗外清新的风,带来生命的气息。是远离喧嚣的宁静,是低调淡然的空间气质。
The master bedroom is a combination of grey and green, showing a unique sense of elegance. It reminds people of the natural freshness of green forest. The first appearance of sunshine, mixed with the taste of nature, makes people's yearning for close to the vitality of nature concrete, and also shapes the habitable place of the soul. Dim screen, accompanied by the fresh wind outside the window, brings the breath of life. It's quiet away from the noise, and it's a low-key and indifferent space temperament.
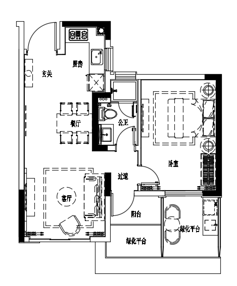
平面图


公司创始人介绍:
徐帆,GLD绿檀公司创始人,为浙江大学硕士研究生,曾赴英国伦敦作交换留学,有着多国游历经验。毕业后在绿城房产集团任职多年,不但具有丰富的甲方管理经验,而且有优质的乙方设计经验,在设计领域中对国际时尚文化有着极为敏锐和独到的领悟,极具国际设计视野。

GLD绿檀设计
浙江绿檀装饰工程设计有限公司为多种类型的项目提供优质的室内设计和软装陈设服务,包括住宅项目,如样板房、售楼处、会所等;私人住宅如公寓及别墅;餐厅、酒店、服务公寓及商场等酒店、餐饮项目。我们秉承设计无界限的理念,通过文化融合、品牌整合、产品及设计师合作等协作方式得以充分体现并进一步加强。同时,通过和美国、欧洲的顶级品牌和设计师多年的紧密合作,将欧美最顶级的品牌引进中国。
ZheJiang lvtan decoration engineering design co., ltd. provides quality interior design and soft furnishings services for various types of projects, including residential projects, such as model houses, sales offices, clubs, etc. Private residences such as apartments and villas; Restaurant hotel service apartments and shopping malls such as the hotel catering project, we uphold the concept of design has no boundaries, brand integration and product designers through cultural fusion and collaborative approaches to cooperate fully embody and further strengthen at the same time, through and the United States, Europe's top brands and designers work closely together for many years, will be Europe and the United States's top brand into China
1
END
1
金盘网APP
金盘网公众号
金盘网小程序


