海力作品 | 铝开投蓝城·甲第府 艺术品场景化 引入...
本项目是蓝城地产位于西彭的创新型新项目【甲第府】,在本项目设计中,海力潜心洞察到后疫情时代人们对生活品质与精神需求有了双重的提升。项目所处的场域,自然与人文双重叠加,也为设计提供了灵感。
- 项目名称:海力作品 | 铝开投蓝城·甲第府 艺术品场景化 引入个性化社交新模式
- 项目地点:重庆市 重庆市 九龙坡区西彭
- 开发商:蓝城集团,铝开投集团
- 设计参考价:¥1500/㎡
- 项目类型:住宅
- 形态:示范区
- 市场定位:高端系
- 建成时间:2024年
- 风格:现代
- 主力户型:小高层(7-11层) 平层 120-144㎡ 3室 2厅 2卫
- 设计面积:2000㎡
- 容积率:1.5
- 发布日期:2025-08-07
- 最近更新:2025-08-07 11:32
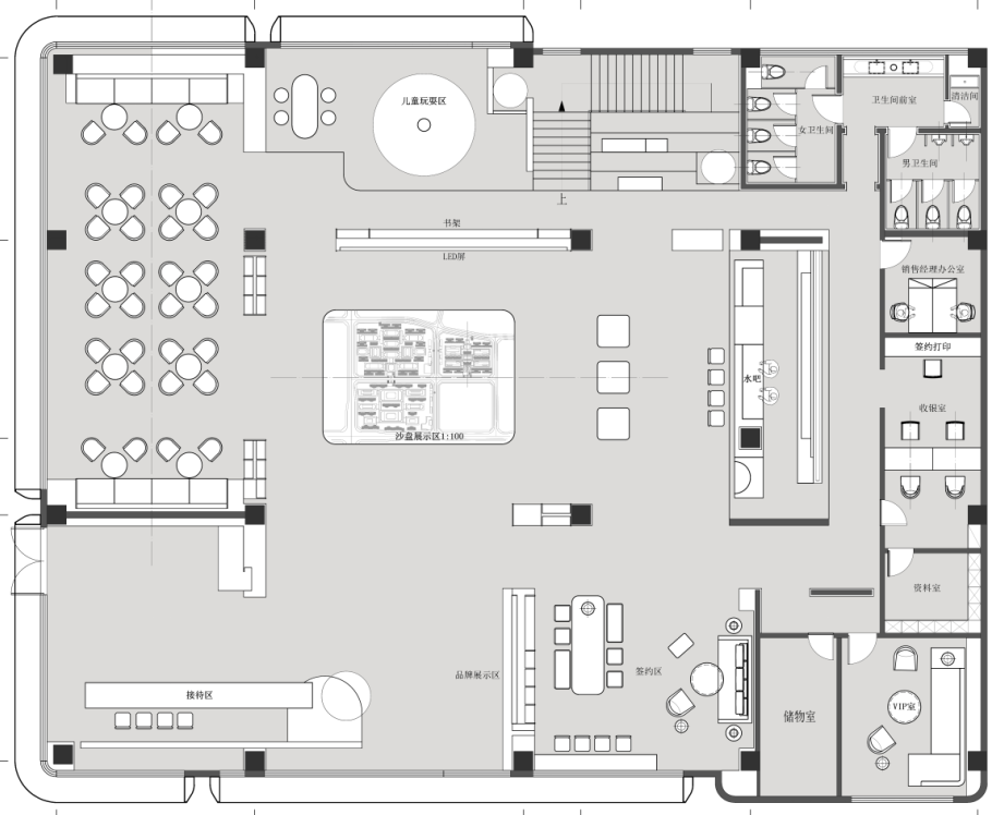
空间 是生活的舞台 设计则是赋予其灵魂的笔触 ——海力设计 本项目是蓝城地产位于西彭的创新型新项目【甲第府】,在本项目设计中,海力潜心洞察到后疫情时代人们对生活品质与精神需求有了双重的提升。项目所处的场域,自然与人文双重叠加,也为设计提供了灵感。 传统的售楼部已无法满足现代人对生活体验与精神追求的双重渴望,海力因此决定打破常规,以“自然与人文的交响,重塑社交新空间”为核心理念,致力于打造一个集销售、社交、休闲于一体的多元化未来时空体验中心。 项目通过“打破常规,重塑全新体验感”和“艺术品场景化引入,体验个性化社交方式”的设计哲学,期待为客户呈现一个既能触动心灵又能激发想象的全新空间,从而展示项目的独特魅力,并引领客户踏上一场前所未有的未来生活探索之旅。 ✦ ✧ 营销中心 ✦ 01 星际启程 接待区 这是整个售楼部的序章,旨在为客户营造一种穿越时空的错觉。金属面板与灯带的巧妙结合,不仅展现了未来科技的冷峻与神秘,更在光影交错间营造出一种冷静而深邃的氛围,仿佛即将开启一场星际穿越的冒险。 兔子形象的太空穿越官,作为接待区的IP,不仅是这里的吉祥物,更是引领客户穿越未来时空的向导。它以其可爱的形象,为空间增添了童趣与亲和力,使得整个接待区既不失科技感,又充满了温馨与活力。 环形艺术装置与金色面板、橙色灯光的交织,更是打破了金属的冰冷感,让整个空间在冷静中透露出一丝温暖与希望。 02 宇宙沙盘 艺术沙盘区 沙盘区是整个营销中心的核心。在这里,运用了超大未来科技感十足的环形灯,如同星际航行的导航灯,引领客户探索未知的宇宙。圆形球体上生长出的树木,寓意着自然与科技的和谐共生,展示了未来家园的无限可能。 03 星际对话 洽谈区 洽谈区以现代科技感融合舒适设计,展现独特交流氛围。圆形洽谈桌配以橙色金属框架座椅,未来感十足;天花板圆形吊灯兼具照明与装置艺术,增添探索意味。 内嵌式书架与温暖木色、活泼橙色交织,营造静谧阅读角。空间明亮通透,自然光与室内环境和谐相融,布局宽敞,既促进交流又保持私密,为用户提供一个时尚实用的交流空间。 04 银河水岸 水吧区 水吧区,为客户提供一个轻松愉快的休闲场所。水吧设计融合了现代科技与自然元素,墙面采用艺术涂料与金属漆相结合,营造出一种未来感与温馨氛围的完美结合。 设计运用了现代简洁的金属质感与半球形态的吧台设计,展现出艺术张力与趣味性。扣挖出的半球形态吧台不仅为空间增添了层次感,更成为了整个水吧区的视觉焦点。 05 手作坊巷 签约区 以手工书吧的形式打造了一个集社交、潮玩展示、探索阅读与手工娱乐于一体的多元空间。共享长桌的设计便于客户签约,同时也为社交活动提供了便利。 签约区设置了丰富的书籍与艺术品,客户可以在签约之余,享受阅读带来的宁静与智慧,感受艺术与生活的完美融合。智慧书斋的设计不仅提升了签约区的文化氛围,更为客户带来了更加丰富的购房体验。 06 星球乐园 儿童玩耍区 营销中心内,儿童玩耍区在这里,我们以太空阅读官为引导,多个星球形态的灯箱点缀其间,为孩子们开启了一场奇妙的宇宙之旅。 孩子们可以与家人共读、嬉戏、制作手工艺品,享受亲子时光的乐趣。星球乐园的设计不仅满足了孩子们的娱乐需求,更为整个售楼部增添了一抹童趣与活力,让客户在购房的同时也能享受到亲子互动的乐趣。 △营销中心平面 ✦ ✧ A1样板间 ✦ 感知温度 回归生活 现代人对于生活品质与精神追求有着双重渴望,设计巧妙融合了“轻奢主义”的设计理念,打造出既简约又不失高雅的生活空间。 整个空间以极致的简约风格为基底,通过一系列精致且高档的元素,展现出低调而奢华的生活态度。线条的简洁流畅与材质的考究质感相互映衬,让空间在视觉上呈现出一种高级的宁静与和谐。 暖灰色系的主色调,它如同晨曦初照下的温柔,为整个空间披上了一层温馨而舒适的氛围。皮革、木饰面、奢石以及拉丝金属等肌理材质的巧妙运用,不仅丰富了空间的层次感,更在细节中透露出居住者对生活品质的极致追求。 生活方式的引入是A1户型设计的另一大亮点。设计师充分考虑到了现代家庭对于亲子互动、舒适居住以及品质生活的需求,通过合理的空间布局与功能划分,打造出一个既满足日常居住需求,又能促进家庭成员间情感交流的生活空间。 配色上提取了大自然的色彩元素,以中性色为主,既保持了空间的沉稳与大气,又通过点缀的橙色为空间增添了一抹亮色,如同春日里的一抹暖阳,让整个空间充满了生机与活力。 在这样的空间中生活,仿佛每一次呼吸都能感受到大自然的清新与自由,让人的心灵得到了真正的放松与释放。 无论是亲子手工区、独立阅读办公区还是宽敞的娱乐休闲区,都能让居住者感受到家的温馨与舒适,让生活变得更加丰富多彩。 △A1平面图 ✦ ✧ B3样板间 ✦ 回归生活本真 探索惬意空间 B3户型的设计则更加注重回归生活的本真,探索一种简约而不失格调的惬意生活方式。整个空间以白橡木、优质布艺及地毯等自然材质为主,通过细腻的材质纹理与温暖的色彩搭配,营造出一种温馨而舒适的居住氛围。 以中性色为主色调的空间中,偶尔点缀的鲜艳色彩如同生活中的小确幸,为居住者带来意外的惊喜与愉悦。 白橡木的温润、布艺的柔软以及腈纶地毯的舒适,共同构建了一个既环保又健康的居住环境,让居住者能够在这里享受到最纯粹的生活乐趣。 通过合理的空间布局与功能划分,设计师为居住者创造了一个既私密又开放的生活空间。无论是夫妻间的甜蜜互动,还是亲子间的温馨陪伴,都能在这里得到完美的呈现。让居住者在享受高品质生活的同时,也能感受到家的温暖与幸福。 生活并不在别处,而在我们时时刻刻的每一个瞬间和眼前,要用能感受温暖与爱的眼光看待每一个事物,每一个刹那,努力的生长与发芽,生活才会向着你期望的方向慢慢的变好。 △B3平面图 项目名称 | 铝开投蓝城·甲第府 业主单位 | 铝开投集团 蓝城集团 项目位置 | 西部(重庆)科学城九龙坡片区西彭 项目类型 | 售房部+A1样板间+B3样板间 完成时间 | 2024.8 甲方团队 | 刁一鸣、陈强、赵亮 空间设计 | 海力空间设计 软装设计 | 海力空间设计 实景拍摄 | 二吾摄影






















































软装实施 | 重庆圣菲斯软装设计有限公司
金盘网APP
金盘网公众号
金盘网小程序


